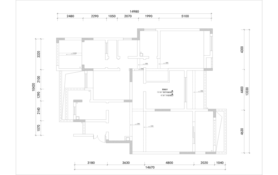
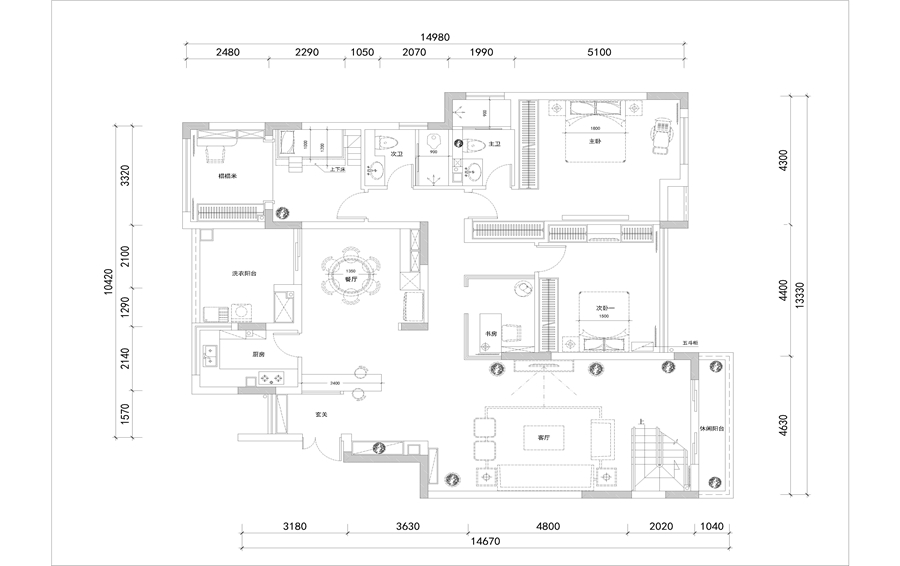
小区:中央铭著
户型:洋房
面积:178
设计风格:混搭
基装:12W
主材:40W
总预算:52W
设计说明背景:这是一个顶层复式住宅项目,屋主既有东方情节,喜欢茶道,喜欢演奏古筝,又
是一个对当下现代生活方式热爱的人,对事物的认识有着自己清晰的判断,追求生活
品质。本案通过精心的材料运营和比例切割,希望能创造出一个印象东方的当代住宅,
它可以承载屋主对生活的从容与自信,并且能传达出无限的闲适与宁静。
小区:中央铭著
户型:洋房
面积:178
设计风格:混搭
基装:12W
主材:40W
总预算:52W
设计说明背景:这是一个顶层复式住宅项目,屋主既有东方情节,喜欢茶道,喜欢演奏古筝,又
是一个对当下现代生活方式热爱的人,对事物的认识有着自己清晰的判断,追求生活
品质。本案通过精心的材料运营和比例切割,希望能创造出一个印象东方的当代住宅,
它可以承载屋主对生活的从容与自信,并且能传达出无限的闲适与宁静。