北大资源博雅
设计师 :廖元松
项目类型 :跃层
户型面积 :室内150㎡
费用介绍:设计费1万 基装费用:9万 硬装+软装费用:30万
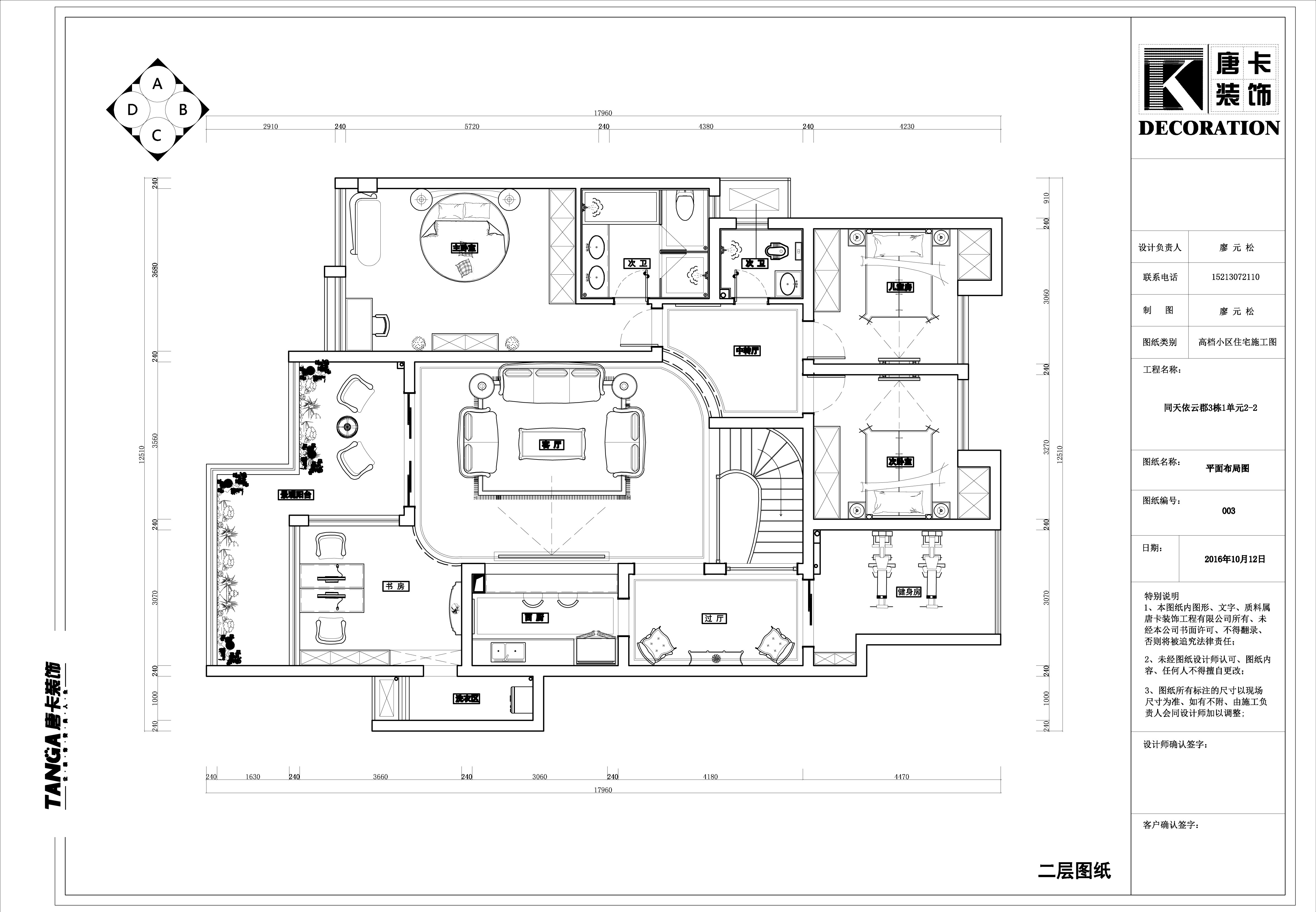
本案户型是三室两厅两卫+楼下现有住房连通,新房设计后为一个主卧套间和一间预留儿童房和一间次卧,常住人口2位,客户背景:父母为准备结婚的儿子准备新房,儿子和准儿媳均为学校教师(周一周五在校、周六、日住家)。
A、 作品在风格上的设计创新点:
摒弃传统电视的束缚,改为家庭影院模式;年轻一代对于生活有着不同的需求,和朋友的小聚;新婚的甜蜜。
B、 作品在空间布局上的设计创新点:
原户型一层结构居于传统,结构上拆掉多余的墙体;亲人朋友之间交流小聚更顺畅。
设计公司:唐卡装饰
公司地址:重庆江北区观音桥苏宁电器5楼






