咨询热线:023-67890915

设计案例|

当前位置:首页 >
金科天元道0人关注
设计师:潘婷
设计风格:美式乡村
建筑面积:121㎡-180㎡
查看设计师按此案例获取报价方案预约参观此工地
案例说明Case description

金科天元道

美式风格,这套房子的装修有种跟业主不得不说的缘分,真的是在人群中多看了你一眼。

风格是很早就拟定好的,现在实际现场装修好了,实际的色调和效果有一定差距,因为当时女业主刚怀着小宝宝,实际确定宝宝性别后,我们在实际材料选择上,担心甲醛对于小宝宝的免疫力的影响,整体减少了木作,用石膏线条代替木线条,用留白与主色调之间的对比,体现居住人对于色彩的喜爱和内心的情怀,主卧室裸粉色,儿童房年淡绿色,客厅青草绿。

套内150㎡,预计60万

基装11万,主材35万,家具家电12万。


+ 更多案例

相关案例推荐

  • 两江新宸丨两居室丨美式乡村
    楼盘:两江新宸 风格:美式 户型:复式 预算:130万 面积: 220平米 家庭成员:四口之家 描述: 本案在设计手法上,以美式传统风格为主调,吸取了文艺复兴时期的古典元素,既不过分 张扬,而又恰到好处地把雍容典雅之气渗透到每个角落,既突出房子本身的自然优势又适当彰显 业主的个人品味。 客厅经过精心布置,简单大方。丰富的天花造型加上仿古吊灯两两相趣成 章,给人以庄重豪气之感;整个地面运用了仿古地砖做拼贴饰面,与墙面作旧感的肌理漆形成对 应,
    查看案例详情 + 立即定制大宅 >
  • 金科岭上丨复式丨美式风格
    项目名称:崇尚自由 项目名称:金科岭上 项目性质:全案 设计面积:210㎡ 硬装造价:100元/平方 软装造价:60元/平方 主要材料:木纹大理石、红橡木、印花皮、木地板、艺术漆 预算总造价:110万 设计说明:整个设计延用古典美式的传统基础上,摒弃繁复,不失简约、高贵、时尚,整个空间布局进行分割处理,使空间自然流畅、井然有序,并透露出高贵与奢华。在规划布局上营造出浓郁的古典风格。细节的设计充分尊重自然,拥抱健康,低调中浸出欧洲的浪漫主义风情。因此,
    查看案例详情 + 立即定制大宅 >
  • 凤凰湾丨复式丨美式风格
    项目名称:幸运草之星 项目名称:凤凰湾 项目性质:全案 设计面积:160㎡ 硬装造价:100元/平方 软装造价:60元/平方 预算总造价:40万 设计说明:在本套户型中,设计师帮业主设计了以美式为主的风格,在整体色调上设计师以舒适型的白色为主调,配上稳重大气的美式家具整体空间舒适、温和、时尚、美观!卫生间整体大调以白色为主极有一种电影里的浪漫情节!在本套户型中,设计师放入了自己的浪漫主义思想去设计,将整个户型设计的与众不同,独具匠心
    查看案例详情 + 立即定制大宅 >
  • 半山华府丨三居室丨简美风格
    项目名称:半山华府 地址:半山华府 面积:110 风格:简美风格 工艺用材:石材/实木地板/饰面线条/艺术涂料 基础预算:8.5万 家庭成员:先生 太太 儿子 描述:一家三口,夫妻两都是老师,小孩还在读书。对家的理解是休闲而复古。平常都喜欢看书。简美是美式的一种表现,城市节奏的列车让我们对简单的生活和风格的和谐结合的高要求,美式只是乡村,和古朴,简约的元素让美式复合了现代生活需求,让主人对家的爱有个另外的理解,人,情,平,和,几个透露了家中生活满足感。
    查看案例详情 + 立即定制大宅 >
  • 南山郡丨别墅丨简美风格
    林超 LIN CHAO 【职位】 主任设计师 【学习经历】 西安工程大学艺术系 【工作资历】 从事室内装饰设计8年 【设计理念】 从实用的角度,到超载的发挥,构成艺术的主体 【擅长风格】 现代、北欧、新中式、美式、欧式、田园,古典,地中海 【成功案例】 龙湖江与城、金科世界城、欧鹏教育城、珊瑚水岸、长嘉汇、金科中央华府、融汇半岛、中渝香奈公馆、东原D7、华润二十四城、龙湖U城、雅居乐、金科天宸、书香溪墅、凤凰湾、中铁北美时光、奥园城市天地、同景国际城、时代都会、雅云居山、银翔翡
    查看案例详情 + 立即定制大宅 >
  • 北大资源博雅丨三居室丨美式风格
    3.设计理念:空间里减法好过于加法,设计以人为本 4.擅长风格,珥本、工业、新中式、现代、北欧、轻法 5.毕业学校:四川美术学院 设计专长:手绘,全案软装、灯光、智能化的定制设计
    查看案例详情 + 立即定制大宅 >
  • 半山华府丨三居室丨简美风格
    3.设计理念:空间里减法好过于加法,设计以人为本 4.擅长风格,珥本、工业、新中式、现代、北欧、轻法 5.毕业学校:四川美术学院 设计专长:手绘,全案软装、灯光、智能化的定制设计
    查看案例详情 + 立即定制大宅 >
  • 旭辉九英里丨三居室丨简美风格
    设计感悟:设计本身就是艺术,是对定性空间的二次分解,以多元化的设计手法去营造新空间的环境氛围或是用各种设计元素去堆砌一个全新的整合体,来满足空间的实际需求。 设计理念:于生活中寻找设计灵感,给设计一份惊喜。
    查看案例详情 + 立即定制大宅 >
  • 暂时没有数据
    金科天元道丨四居室丨简美风格
    风格:简美 户型:4室2厅1厨3卫 面积:使用面积227平米 业主情况:改善型住房,常住人口3之家 基装费用:15.8万
    查看案例详情 + 立即定制大宅 >
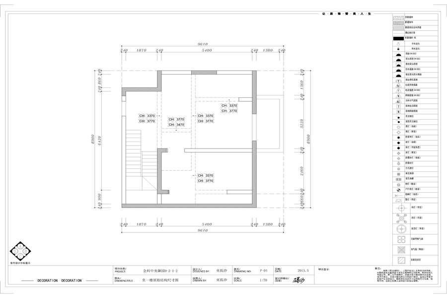
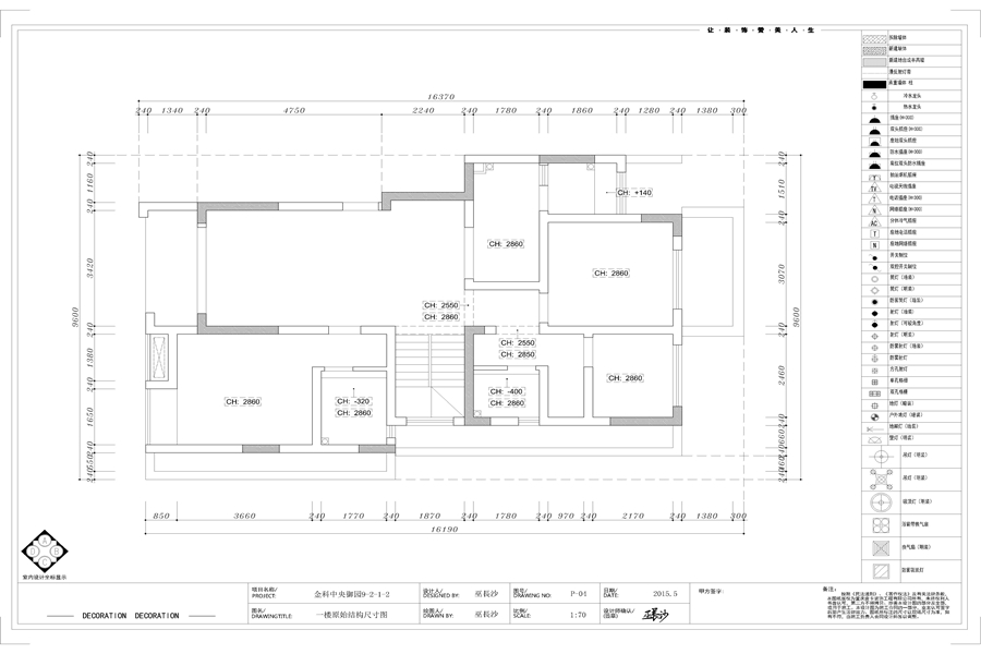
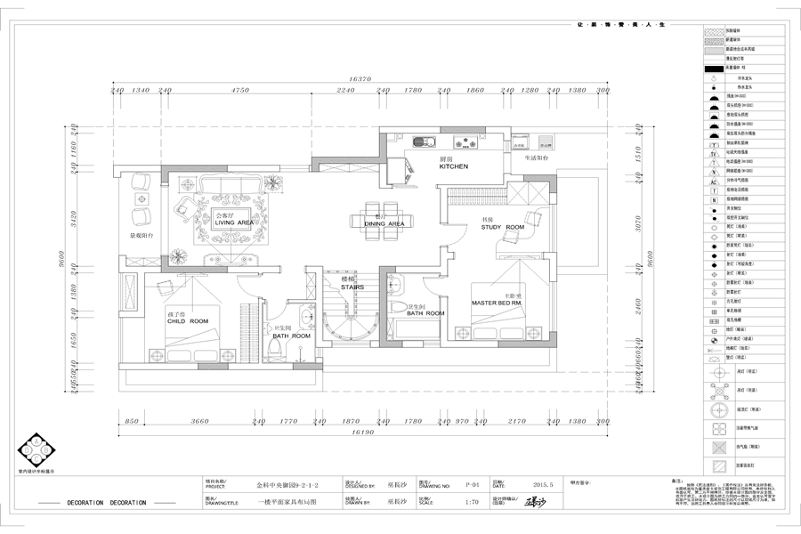
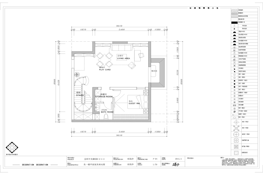
  • 和记黄埔御峰丨别墅丨美式风格
    平面效果图案例设计说明:本案以暗棕、土黄为主的自然色彩为基础,形成简洁怀旧、舒适天然的美式风格,采用大量的墙布和木饰面进行装饰。本案功能布局是以负一楼为客厅及车库,简洁明快,宽敞而富有历史气息。一楼为餐厅,开放式厨房绕着全家的笑声,美观且光线明亮,营造温馨的就餐环境。二、三楼作为主人的卧室、书房,具有一定私密性,主要以功能性和实用舒适为考虑的重点,运用温馨柔软的成套布艺来装点,同时在软装和用色上非常统一。美式不只是一种风格,也是一种生活态度。
    查看案例详情 + 立即定制大宅 >
  • 春森彼岸|150平米|田园风欣赏
    计特色: 详细说明:洞穴、爱斯基摩人、自然、质朴,这是设计伊始,客户给到我们的关键词,客户天马行空的想象对我们来说是一个不小的挑战,在反复思考和调整中,历时大半年的童话空间我们才完成,房屋是常见的方正布局,改造基本延用了原有的结构,又在墙与墙之间大同了许多窗洞。休闲区与客厅、书房同餐厅、儿童房和书房之间既保留了原有的隔断,又因为有窗洞的链接,整个房子成为了一个自由开敞的空间。家庭成员在各自独立活动的同时,也能互相关照和交流。 蜡烛灯、鸟窝灯、缠线灯、鸟笼钟、手绘海图、做旧地砖、榉木拉杆绳索、鹿角以
    查看案例详情 + 立即定制大宅 >

预约参观工地

一键预约装修

小区样板房征集: