咨询热线:023-67890915

设计案例|

当前位置:首页 >
半山华府丨三居室丨现代欧式0人关注
设计师:李岩
案例地址:半山华府
设计风格:简欧
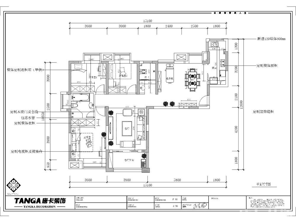
建筑面积:120㎡以下
查看设计师按此案例获取报价方案预约参观此工地
案例说明Case description

设计说明:


丰富的颜色在低浓度的调和下显得更忧郁,有内涵。符合业主的性格,业主便是开发商的水电承建商,对室内空间便不是陌生,与设计师的沟通更是运用到的极致,不放过每个细节。餐厅设计建设健身器材也体现业主的独特品味。热爱生活就像热爱美食一样。时尚感不放弃的条件下保持整体空间的稳重与灵境。


+ 更多案例

相关案例推荐

  • 中央公园丨简欧风格|三居室
    项目名称:典则俊雅 地址:中央公园 面积:110 风格:简欧 工艺用材:实木地板、石材、PU线条 基础预算:8.6万 家庭成员:父母,年轻夫妻、 孙女 描述:三代同堂,男主人职业律师,爱好安静的生活,女主人职业主持人,平时爱好唱歌、插花,家里有一个3岁的女儿,聪明乖巧,活泼可爱,爱好唱歌跳舞,父母退休、享受晚年生活,虽然喜欢安静,但也喜欢儿孙的欢声笑语,一家人都比较注重生活品质,整体设计上简洁而温馨,色彩上是视觉上的享受,乳白色的沙发上堆满了印花棉布的靠垫,茶几上花瓶的蓝色鲜花,色彩相
    查看案例详情 + 立即定制大宅 >
  • 凡尔赛丨四居室丨欧式风格
    林超 LIN CHAO 【职位】 主任设计师 【学习经历】 西安工程大学艺术系 【工作资历】 从事室内装饰设计8年 【设计理念】 从实用的角度,到超载的发挥,构成艺术的主体 【擅长风格】 现代、北欧、新中式、美式、欧式、田园,古典,地中海 【成功案例】 龙湖江与城、金科世界城、欧鹏教育城、珊瑚水岸、长嘉汇、金科中央华府、融汇半岛、中渝香奈公馆、东原D7、华润二十四城、龙湖U城、雅居乐、金科天宸、书香溪墅、凤凰湾、中铁北美时光、奥园城市天地、同景国际城、时代都会、雅云居山、银翔翡
    查看案例详情 + 立即定制大宅 >
  • 暂时没有数据
    何泓江山国际丨大平层丨欧式风格
    本案设计主要风格定向为奢华欧式,这种风格强调以华丽的装饰、浓烈的色彩、精美的造型达到雍容华贵的装饰效果。欧式客厅顶部喜用大型灯池,并用华丽的枝形吊灯营造气氛。门窗上半部多做成圆弧形,并用带有花纹的石膏线勾边。入厅口处多竖起两根豪华的罗马柱,室内则有真正的壁炉或假的壁炉造型。墙面经典欧式花纹墙纸,以烘托豪华效果。地面材料以石材或地板为佳。欧式客厅非常需要用家具和软装饰来营造整体效果。深色的橡木或枫木家具,色彩鲜艳的布艺沙发,都是欧式客厅里的主角。还有浪漫的罗马帘,精美的油画,制作精良的雕塑工艺品,都是点染欧
    查看案例详情 + 立即定制大宅 >
  • 暂时没有数据
    春森彼岸丨大平层丨简欧风格
    春森彼岸 面积:350 装修总预算:150万 简美风格 美式装修风格是把欧洲各个名族的装饰文化和家具特色带到崇尚自由的美国,这种风格贵气、随意、自由也被不少国内业主喜爱。 客厅是会客的重要区域,装修中对空间要求也要比其他空间更为简洁明快,美国人喜欢在装修上使用各种仿古砖和仿古艺术品, 让客厅充满了艺术气息的同时还宽敞、明快。在复杂的基础之上添加一些现代的元素在其中 显得温馨大气 ,简约而不简单。
    查看案例详情 + 立即定制大宅 >
  • 金科天元道丨三居室丨简欧风格
    1、业主需求:业主喜欢欧式元素但是又喜欢简单大气。 2、设计理念:简约、质朴的设计风格是众多人群所喜爱的,生活在繁杂多变的世界里已是烦扰不休,而简单、自然的生活空间却能让人身心舒畅,感到宁静和安逸 ​
    查看案例详情 + 立即定制大宅 >
  • 暂时没有数据
    金科天元道丨跃层丨欧式风格
    业主是追求时尚的豪华.大气,生活中不浮夸不媚俗。 用一种理性睿智又不失激情的生活态度诠释着都市雅痞的定义。 本案设计的主题是“欧式” 将品质,舒适,轻奢的设计风格和元素融入整个空间。 在色彩上采用暖色系来打造,主色调米色,棕色来过度,局部亮点点缀。 在满足空间风格的前提下,力求时尚简约,使整个空间个性化十足。
    查看案例详情 + 立即定制大宅 >
  • 长嘉汇丨大平层丨欧式风格
    不加过多修饰与约束的美式风格,散发出迷人的休闲式浪漫,既有着欧式风格的华丽与贵气,又剔除了更多羁绊,同时又能寻找文化根基的新的怀旧,贵气而不失自在与随意。简美更是以功能性为优先考虑,适合追求舒服,兼顾优雅,既注重起居品质,又不过分张扬。
    查看案例详情 + 立即定制大宅 >
  • 暂时没有数据
    龙洲湾1号|三居室|欧式风格
    龙洲湾1号|三居室|欧式风格设计师:杨凌志设计风格:欧式建筑面积:100㎡~120㎡
    查看案例详情 + 立即定制大宅 >
  • 暂时没有数据
    和泓四季
    你们个人资料:1、设计年限5年2、毕业学校西南大学3、设计理念:好的设计作品,是使人生活得更为幸福的设计作品作品案例介绍马赛庄园 面积116 集装费用8万 整体费用38万 设计风格现代轻奢
    查看案例详情 + 立即定制大宅 >
  • 融侨城|三居室|简欧风格
    设计风格:时 尚 简 欧设计元素:实木护墙板、玻璃、艺术墙布、天然大理石等等总体造价:23万(不含家电家具)
    查看案例详情 + 立即定制大宅 >
  • 香城雅郡丨三居室丨欧式
    本案小区:香城雅郡设计风格:欧式
    查看案例详情 + 立即定制大宅 >
  • 金科城御江府丨平层丨简欧风格
    简欧风格,顾名思义是欧式风格和简约风格结合的一种,它没有欧式奢华华丽的表象,却有着欧式的优雅高贵,也很符合中国人的审美价值。色彩的变幻和多元素的融合是简约的经典理念随着简约室内设计风格的升级和传统欧式风格的净化,一些成功人士开始追逐简欧的家居风格。这套房子风格以其典雅,高贵的气质见长,在颜色上使用浅色体现了空间的宽敞,但又使用一些不失沉稳的深色装饰融合在里,成为不可或缺的一道风景,深色的材料与家具...
    查看案例详情 + 立即定制大宅 >
  • 凤凰湾丨别墅丨简欧风格
    本案为复式楼带地下室双花园。建筑面积248平米, 简欧设计风格,主题思想金玉满堂。客户比较年轻所以采用白色水曲柳做为护墙。整个色调比较清爽。天棚采用了金色石膏线条突出设计主题。让整个空间看起来不这么死板。达到清晰自然的效果。基装:17万。主材:45万。整体费用135万左右。楼盘地址:凤凰郡效果图三张。客厅。
    查看案例详情 + 立即定制大宅 >
  • 暂时没有数据
    融侨城
    设计说明:居宅样茂呈现业主的尊贵品味,根据本案的空间优势,以独特的视角展演场域的内涵层次,并注入极具奢华的欧式语汇,满足层峰人士所希冀的设计蓝图。推开门扉,一层及负一层的客餐厅以完全开阔的格局呈现,充分感受开放连贯的宽敞气度。
    查看案例详情 + 立即定制大宅 >
  • 东邦·小悦湾
    设计说明:一直觉得“欧美风格”是所有家居风格中,最闷骚、最温馨、也是最随意的一个。它的矛盾之处在于,它用及其简洁干练的风格,装出高雅的内在气质,既不显的过于冷硬,也不显得华丽浮夸,像一个端庄大气的大家闺秀,给人如沐春风的感觉。
    查看案例详情 + 立即定制大宅 >

预约参观工地

一键预约装修

小区样板房征集: